0
fr
ANG IMMOBILIER Agence
Télécharger la fiche

Appartement 3 pièce(s) 2 chambre(s) 54 m²

Nice (06000)
212 400 € Référence FR4712888

A propos de ce bien

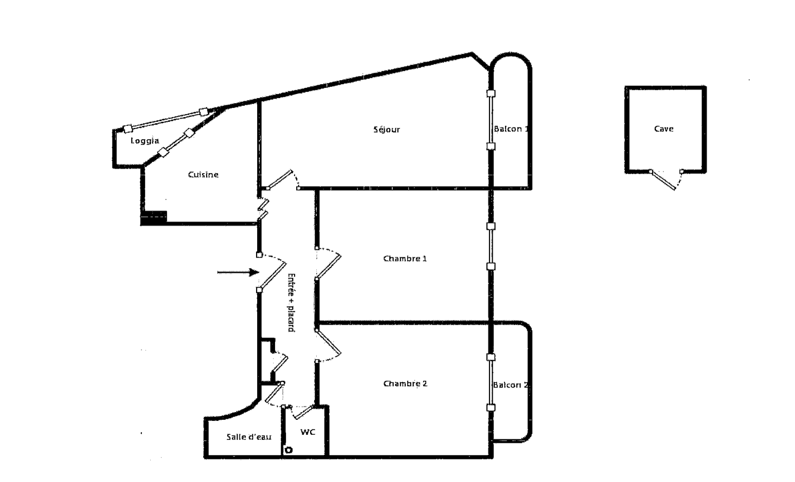
Un appartement traversant de type 3 pièces offre une superbe luminosité grâce à ses deux balcons exposés à l?est et une disposition parfaitement fonctionnelle.Il se compose comme suit :- Une entrée avec placard,- Un séjour spacieux ouvrant sur un premier balcon ensoleillé,- Deux chambres confortables, dont l?une avec accès direct au deuxième balcon,- Une cuisine indépendante aménagée, donnant sur une loggia fermée,- Une salle d?eau avec douche et bidet,- Un WC séparé.Une cave vient compléter ce bien.Localisation idéale : à quelques minutes à pied de la gare SNCF, des commerces de proximité, des écoles et de la Promenade des Anglais. Emplacement parfait pour un pied-à-terre, une résidence principale ou un investissement locatif.Accès rapide au tramway, aux lignes de bus et aux axes routiers majeurs.

Caractéristiques de ce bien

  • Surface 54 m²
  • 2 chambre(s)
  • 1 salle(s) d'eau
  • construit en 1960
  • 4ème étage
  • 6 étage(s)
  • 1 cave
  • 1 balcon

Diagnostics énergétiques

Consommation énergétique
A B C D E F G
Emission de gaz à effet de serre
A B C D E F G
DPE ANCIENNE VERSION

Informations financières

Prix de vente honoraires TTC inclus 212 400 €

Calcul des mensualités

* Champs obligatoires